
- Model: VK-SPAF
- Spôsob merania: šnekové meranie a podávanie
- Rozsah hmotnosti: 50-500 g
- Presnosť: 2%
- Rýchlosť: 10-30 fliaš/min
- Napätie: 220V (prispôsobiteľné)
- Zásobník: 25L
- Plniace trysky: 10 mm (iné pre 15 mm, 18 mm, 20 mm, 25 mm)
- Výkon: 1,2 kW
- Hmotnosť GN: 230/200 kg
- Veľkosť: 800×850×2000 mm
Tento stroj na plnenie prášku je kompletne vyrobený z nehrdzavejúcej ocele, plniaci systém je poháňaný servomotorom a na miešanie motora sa používa taiwanský bezúdržbový reduktor, skriňa produktu je špecifikovaná ako úplne uzavretá, klapka s reguláciou tlaku vzduchu, vyrobená z nehrdzavejúcej ocele oceľ a sklo. Zariadenie na odsávanie prachu je namontované v ústí plniacej trubice, určené pre opakovane použiteľný pracovný stôl s nastaviteľnou výškou, so zásuvkou na odpad pod stolom.
Hlavné vlastnosti zariadení na plnenie detského mastenca poloautomatických


Vyrobené z nehrdzavejúcej ocele: úplne sa prispôsobí požiadavkám GMP alebo inej certifikácii hygieny potravín vhodných na balenie korozívnych chemikálií;
Lepšia stabilita plnenia a vyššia presnosť váženia;
Plniaci systém je poháňaný krokovým motorom, vysokou presnosťou, vysokým krútiacim momentom, dlhou životnosťou a nastaviteľnými otáčkami;
Taiwanský bezúdržbový reduktor sa používa na miešanie motora: nízka hladina hluku, dlhá životnosť, bezúdržbový po celú dobu životnosti;
Navrhnuté pre pracovné podmienky, ktoré sa môžu kedykoľvek zmeniť;
Pre neskoršie použitie je možné uložiť maximálne 10 receptov;
Kontaktný materiál oceľ je potravinárska nehrdzavejúca 304;
Skriňa produktu je plne uzavretá, ovládaná vlhkým vzduchom a vyrobená zo skla s nehrdzavejúcou oceľou, pohyb produktu v skrini je na prvý pohľad jasný, nedochádza k úniku prášku, zariadenie na odsávanie prachu namontované v ústí plniacej trubice vedie k čistému prostrediu závodu;
Vďaka výmene príslušenstva je stroj vhodný pre viacero produktov, bez ohľadu na super jemný výkon alebo veľké zrno.
Špecifikácia šnekového meracieho stroja na plnenie prášku
| Model | VK-SPAF |
| Spôsob merania | Meranie a podávanie šneku |
| Rozsah hmotnosti | 50-500 g |
| Presnosť | 2% |
| Rýchlosť | 10-30 fliaš/min |
| Napätie | 220 V (prispôsobiteľné) |
| Hopper | 25L |
| Plniace trysky | 10 mm (iný pre 15 mm, 18 mm, 20 mm, 25 mm) |
| Sila | 1,2 kW |
| Hmotnosť GN | 230/200 kg |
| Veľkosť | 800×850×2000 mm |
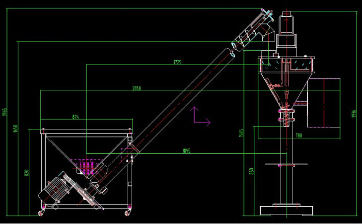
Ilustrácia Práškového plniaceho stroja


Podrobnosti


Nakladanie a podávač materiálu so skrutkou výťahu

Inštalácia na podávanie a nakladanie materiálov
Prepínač v dvoch smeroch; rotácia dopredu / dozadu pre podávanie materiálov a vykladanie materiálov zo spodného výstupu.
Hriadeľovú spojku reduktora nemožno zablokovať. Po montáži by mala byť hriadeľová spojka napnutá a pružná, aby nedošlo k popáleniu z preťaženia motora. Počas inštalácie je možné správne nastaviť skrutku príruby.
Koniec čapu šneku by nikdy nemal byť pripevnený príliš tesne, aby sa rotujúci šnek nedotýkal steny rúry v dôsledku ohnutého šneku. Zaskrutkujte maticu, aby ste upevnili kolík, aby ste ho upevnili. Pri každom vytiahnutí závitovky na čistenie a opätovnú inštaláciu je potrebné zvážiť tento bod.
Objem a výšku výťahu je možné integrovať s baliacim strojom pomocou sériovej indukcie. Bez materiálov v nádrži nie je možné podávať materiály z výťahu.
Výťahový spoj pracuje so strojom na plnenie prášku, automaticky sa podáva a zastavuje.
Technický parameter pre výťah

| Prenáša sa objem | 1 mil3/hodina (integrovaná s plniacim strojom) |
| násypka | 100 l |
| Zdvíhacia výška | 2000 mm |
| Výkon motora | 1,5 kW |
| Napájací zdroj | 380V/50-60Hz |
| Výška medzi zásobníkom a zemou | 800-900 mm |
| Značka motora | Juli |
| Materiály násypky | SS304, hrúbka 1,50 mm |
| Potrubie na prepravu kŕmnych surovín | SS304, Priemer: 103 mm, Hrúbka: 3,00 mm |
| Auger | SS304, hrúbka 3,00mm |
| Hriadeľ | SS304, priemer 35 mm |
| Hmotnosť | 150 kg |
| Veľkosť | 1900*880*2100mm (prispôsobiteľné) |
Záruka: Na všetky stroje sa vzťahuje záruka 1 rok. (Zo záruky sú vyňaté problémy v dôsledku nehôd, nesprávneho použitia, nesprávneho použitia, poškodenia pri skladovaní, nedbalosti alebo úpravy zariadenia alebo jeho komponentov. Záruka nie je zahrnutá ani na ľahko rozbitný náhradný diel)
Inštalácia: Po príchode stroja do vašej továrne, ak potrebujete, náš technik príde k vám, aby nainštaloval a otestoval stroj a tiež zaškolil vášho pracovníka na obsluhu stroja (čas školenia závisí od vášho pracovníka). Výdavky (letenka, strava, hotel, cestovné vo vašej krajine) by mali byť na vašom účte a za technika musíte zaplatiť 150 USD za deň. Môžete tiež ísť do našej továrne na školenie.
Po servise: Ak sa vyskytne problém na stroji, náš technik príde k vám, aby stroj čo najskôr opravil. Náklady by mali byť na vašom účte (ako je uvedené vyššie).









